



01项目概况

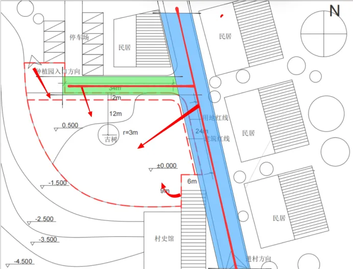
拟在江南一村落内建设一座乡村游客接待中心,兼具服务游客和乡村居民生活的功能。地块内有一颗古树需要保留,东南侧为村落入口,东侧和北侧为民居,西北侧为停车场,西南侧为山地。同时场地南侧为村史馆,西北侧为种植园入口方向。地块面积为750㎡,北侧和东侧建筑红线需退让用地红线2m。

02功能要求

(建筑面积约450㎡)
(1)农产品展售区120㎡(可自由划分)
(2)接待区100㎡(可划分为休息等空间)
(3)茶室50㎡
(4)卫生间50㎡
(5)村民室外活动场地300㎡

03设计要求

(1)场地内无需设置停车场,可利用西北侧停车场
(2)上述功能空间除卫生间外均可自由划分
(3)功能空间内部需适当布置家具
(4)需要妥善处理好种植园,村史馆和乡村游客接待中心的联系
(5)建筑高度不超过12m

04图纸要求

(1)总平面图(1:500)
(2)各层平面图(1:100)
(3)立面图1-2张(1:100)
(4)剖面图1张(1:100)
(5)建筑轴测图,比例适当
(6)设计分析图(数量不限)和文字说明
(7)图纸表现黑白即可

05地形图



06题目解读

题目解读
(1)场地西南侧临山景,自然条件优越;
(2)场地内有一颗古树需要保留;
(3)人流来向明确,人流关系不复杂 ;
(4)功能数量不多,且空间可自行分割
(5)有层数要求 ;
(6)轴测图+黑白表现(尽量彩色)

24年真题——滨河文化中心
近几年快题都有考察场地内隔断、良好景观界面、对场地内古构筑物保护的处理。


01场地分析

(1)场地西南侧为山景;
(2)场地内有古树作为保留景物;


02周边道路

(1)场地周围没有城市道路;
(2)红线北侧为车行出入口道路,东侧为村落内部主干道路;
(3)同时兼顾种植园和村史馆的人流来向



01景观关系

场地两侧为山景,人流的判断相对比较容易,人流只能来自东侧和北侧。
(1)外部人流主要为东侧村落入口处道路和北侧停车场车行道路,故其主入口应该开在东侧
(2)场地两面环山,内部有一颗保留古树,西南侧需要重点呼应
(3)需要兼顾村民活动人流和种植园与村史馆联系流线,需要呼应,考虑人流可达性

(1)山景位于西南侧的场地之外,而古树位于场地内部,故场地西南侧对需要营造良好的景观观赏位置,可以用大量的平台和环抱状的形体去呼应需要着重观察的自然景观。
(2)需要考虑到村史馆与种植园入口的游客流线,又要兼顾村民到达场地内部进行群体活动和欣赏景色的需要,故需要妥善处理场地内部的可达性。
景观呼应:采用C字形和平台进行围合

流线可达:考虑场地内和外部流线的可达性


02场地内要素

场地内的古树和0.5米高差是题目中无法变动的元素,故需要着重考虑。
(1)古树作为点状景观,可以采用扭转的体型或是曲形平台作为观赏空间:
(2)场地内部高差仅为0.5米,故可运用室外台阶进行化解,或是结合内部功能空间,以不同的面高度起到划分空间的效果。
平台、扭转盒子



03功能分区

由于建筑功能较少,分区相对较为自由
(1)应将农产品展售区置于北侧靠近种植园入口处,以起到功能呼应和吸引人流的效果;
(2)同时将建筑主要门厅设置于场地东侧;
(3)茶室和接待根据设计需要布置于游客流线前后:



01以古树为中心两条贯穿流线交融

该方案将两条贯穿流线汇聚于中心的古树广场之中
(1)将两条贯穿流线打通以充分体现建筑的开放性,吸引北侧和东侧人流向古树广场集中;
(2)古树广场南侧的室外剧场给予了村民和游客欣赏山景以及广场活动的场所;
(3)大量平台的运用既呼应了山景,又呼应了场地内的古树和广场的活动。

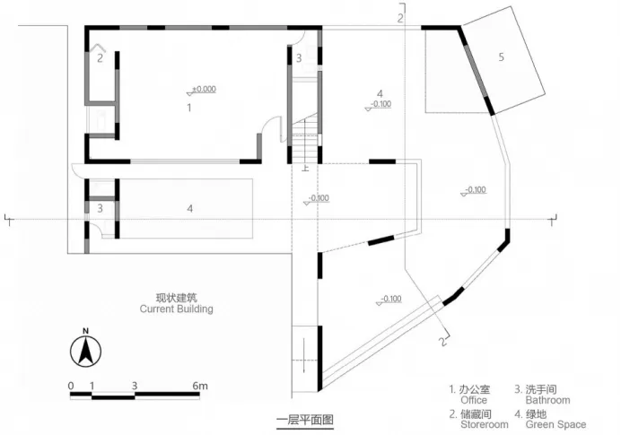
一层平面图

二层平面图

总平面图
(1) 运用人字屋顶的方式,采用简单的坡屋顶搭接方式覆盖L形的平面,这种屋顶处理方式较为百搭,应对长条形体块和L形体块处理十分顺手且适宜;
(2)多余的从L形中伸出来的体块则采用平屋顶的方式进行处理,平坡结合显得整体建筑更加丰富有层次;
(3)同时多个室外楼梯的运用移步换景,把场地中和外部的景色充分纳入建筑之中,很好的呼应了场地环境。

效果展示

02考场复原图



考场并列128分

考场126分

考场125分

考场122分

03真题扩展

针对不同的考点进行针对性训练才会在碰到类似元素的时候做到心里不慌。
苏州大学25河滨休息驿站设计

苏州大学近年来考察不规则地形+微量高差+面状景观+建筑开放性较多,需较为注意


丰梧季·乡村记忆博物馆

项目地点位于丰梧村的核心地带,其原址曾是一座名为“迎凤里”的老宅,在时代的发展中,老建筑消失不见,逐渐变成村庄的小广场,里面摆放了一些健身器材,希望村民可以日常使用。然而,由于缺乏遮蔽,广场并不适用当地多雨酷热的气候,平时利用率并不高,多被用作晾晒腊肉和衣物的场地。希望通过设计,将这一处村庄消极场所转化为积极的公共空间。




设计方面,将博物馆升至二层,一层除部分附属建筑之外,完全架空,形成半室外的公共空间,保证开放性的同时,为日常的聚会提供遮阳避雨的场所。延续皖南民居的庭院传统,建筑平面呈J字型布局,与现有“乡村卫生室”及地块北侧的民宅相围合,形成天井院落。但与传统纯粹的内向性庭院不同,底层架空和对外开放翻转了内外关系,构建了层次丰富的外向性场所,这是对在地民居原型的重新诠释。


“乡村记忆博物馆”不似通常的博物馆建筑,它并非对宏大叙事的赞美,也不是静态的文物展示,而是关注每个普通的个体,充满着人文关怀。同时,它也是村民日常休闲、婚丧嫁娶、节庆假日的聚会场所,在建筑仅仅完成土建施工之后,当地人已经自发性的在一层举办了两场村宴,这正是我们所期待看到的。因此,在博物馆正式竣工之后,也以一场村宴作为开幕仪式,邀请村民共同参与。老记忆在这里得以延续,新生活在这里不断发生,“乡村记忆博物馆”成为了村庄新的精神核心……




景德镇川上行(景仰书院)

选择“院子”和“廊子”作为主要的空间类型。树冠相触的香樟林被一个新的双层木回廊包裹。廊子底层架空,二层完全通透,形成一个安静的书院氛围,充当着整个场所的“精神领袖”。围绕西边的老梧桐,放置了一个向内打开的砖院,承载各种会议功能。老梧桐四周的陶砖是接近土壤的暖褐色,比一般的砖要薄,和景德镇当地的烧窑的砖尺寸一致。


将客房集中解决,三层高的体量架于北面老房子上方,单走廊面向外街采光,阳台朝着南面的香樟林打开,看向敞阔的城市远景和连绵山脉。南面老仓库的山墙和贴着的泡桐像一个孤岛被完整保留加固,其余整体落架大修。为满足新的功能,将它的屋顶提升了1米,新老高度产生的重檐缝隙处便有了天光和树影。屋架新用了钢桁架,以延续原始木桁架的形式。空间的东西两段变成了大堂和餐饮空间,可以同时对外开放。

一层平面图



结语

在快题设计的优先级排序里,矛盾处理>功能排布>形式塑造是核心准则。但实际绘图时,形式的视觉冲击力往往最抓人眼球,不少同学很容易落入“表现主义”的误区——一味追求图面的炫酷繁复,反而彻底颠倒了设计的本末。
形式的价值从来都不是“主角”,而是在矛盾妥善化解、功能合理落地之后的锦上添花。快题设计中的建筑理性,恰恰就藏在清晰的功能分区、顺畅的流线组织和有逻辑的空间营造之中。日常训练的重点,应当放在吃透各类题型与核心考点上,为不同考点打磨专属的处理策略与设计语汇,遇到陌生考点时,也能灵活转化为熟悉的解题思路。

尚苏课程简章




·END·
扫码加群
👇

尚苏建筑园林考研交流总群

尚苏环艺室内考研交流总群

尚苏城乡规划考研交流总群

2025苏州大学风景园林考研

2025苏州大学建筑学考研

2025苏州大学城乡规划考研

2025苏州科技大学风景园林考研

2025苏州科技大学建筑学考研

2025苏州科技大学城乡规划考研

尚苏手绘快题表现交流群
尚苏--自媒体平台
👇

官方账号@尚苏坊设计工作室
尚苏园林考研账号:
@尚苏廖学姐
@尚苏坊园林考研
全网同名✌
风景园林 | 建筑设计 | 城乡规划 | 环艺室内
咨询电话:18896750362
咨询QQ:550020771
交流总群:179426632
我们用心做有温度的教育!
我们致力打造具有创新性的课程体系!