一级注册建筑师大设计真题复习复盘步骤,以2020年真题博物馆为例
第一步;严格按照考试时间6小时做完真题;
第二步:参照扣分点评图;


第三步:对各大机构的参考答案经行分析,认真分析题目要求进行扬长避短,这个时候会发现市面上的参考答案也是有些问题的。

第四步:认真分析自己的扣分点:
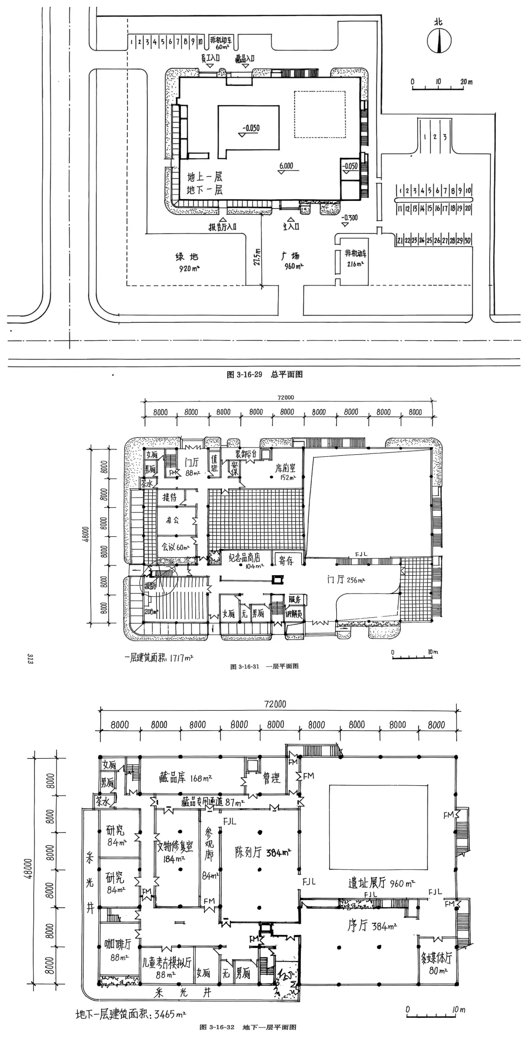
总图: 1、 大客车停车位倒车空间不足;2、集中绿地应该是一个相对完整且有日照的空间; 负一层: 1、管理员进出口不应经过藏品通道;2、下沉广场应该画出来; 一层:1、流线迂回;2、上空部分应该表达防火卷帘;3、楼梯与纪念品商店之间没有开门(负一层上到首层经过纪念品商店这条流线丢了);4、门厅与讲解员、服务台、寄存的关系不好,导致流线迂回;
第五步:总结
1、寄存处不是一个房间,应该是一个开敞的可以自助寄存的空间;
2、遗址展厅上空边缘以及序厅上空边缘需要布置防火卷帘;
3、寄存、服务、讲解室位置应该挨着门厅,考虑打包;
4、多媒体厅应该是一个可以让人停下来观影的空间,而不是一个通过性的空间;
文章来源:
四季读书网
版权声明:本文内容由互联网用户自发贡献,该文观点仅代表作者本人。本站仅提供信息存储空间服务,不拥有所有权,不承担相关法律责任。如发现本站有涉嫌抄袭侵权/违法违规的内容, 请发送邮件至23467321@qq.com举报,一经查实,本站将立刻删除;如已特别标注为本站原创文章的,转载时请以链接形式注明文章出处,谢谢!