《高处作业分级标准GB 3608-2025考核试卷》 注安师:张工 (附:标准)
考试时长:60分钟
满分:100分
注意事项:1. 本试卷依据GB 3608-2025《高处作业分级》编制;2. 答题前请仔细阅读标准内容,认真作答;3. 单选题每题2分,判断题每题1分,总分100分。
一、单选题(共30题,每题2分,总计60分)
1. 根据GB 3608-2025,高处作业是指在距坠落高度基准面()及以上的高度,且存在发生坠落可能的作业。
A. 1m
B. 2m
C. 3m
D. 4m
2. GB 3608-2025《高处作业分级》的实施日期是()。
A. 2025年10月5日
B. 2026年5月1日
C. 2008年10月1日
D. 2025年5月1日
3. 高处作业高度分为四个区段,其中5m<hw≤15m属于()区段。
A. 第一
B. 第二
C. 第三
D. 第四
4. 不存在客观危险因素的高处作业,作业高度2m≤hw≤5m时,分级为()。
A. Ⅰ级
B. Ⅱ级
C. Ⅲ级
D. Ⅳ级
5. 存在客观危险因素的高处作业,作业高度15m<hw≤30m时,分级为()。
A. Ⅱ级
B. Ⅲ级
C. Ⅳ级
D. Ⅴ级
6. 下列不属于GB 3608-2025中规定的可能引起坠落的客观危险因素的是()。
A. 5级以上风力
B. Ⅱ级及以上高温作业
C. 作业环境平均气温等于或低于5℃
D. 作业环境光线明亮
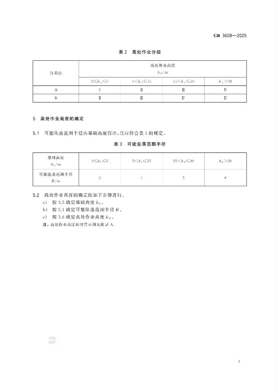
7. 基础高度hb是指以作业位置为中心,()为半径划出的垂直于水平面的柱形空间内的最低处与作业位置间的高度差。
A. 3m
B. 4m
C. 5m
D. 6m
8. 当基础高度hb满足2≤hb≤5m时,可能坠落范围半径R为()。
A. 3m
B. 4m
C. 5m
D. 6m
9. 作业活动范围与10kV危险电压带电体的安全距离小于()时,属于客观危险因素。
A. 1.5m
B. 1.7m
C. 2.0m
D. 2.5m
10. 空气中含氧量低于()的作业环境,属于可能引起坠落的客观危险因素。
A. 19.5%
B. 20.5%
C. 21.5%
D. 22.5%
11. 接触冷水温度等于或低于()的作业,属于高处作业客观危险因素。
A. 10℃
B. 12℃
C. 15℃
D. 18℃
12. 高处作业高度hw是指作业区各作业位置至相应坠落高度基准面的垂直距离中的()。
A. 最小值
B. 平均值
C. 最大值
D. 中间值
13. 不存在客观危险因素,作业高度hw>30m的高处作业,分级为()。
A. Ⅱ级
B. Ⅲ级
C. Ⅳ级
D. Ⅴ级
14. 存在客观危险因素,作业高度2m≤hw≤5m的高处作业,分级为()。
A. Ⅰ级
B. Ⅱ级
C. Ⅲ级
D. Ⅳ级
15. 作业场地有冰、雪、霜、水、油等易滑物,()高处作业客观危险因素。
A. 属于
B. 不属于
C. 视情况判定
D. 部分属于
16. GB 3608-2025代替的旧标准是()。
A. GB 3608-1983
B. GB/T 3608-1993
C. GB/T 3608-2008
D. GB 3608-2015
17. 当基础高度hb满足15<hb≤30m时,可能坠落范围半径R为()。
A. 3m
B. 4m
C. 5m
D. 6m
18. Ⅲ级及以上体力劳动强度的作业,()高处作业客观危险因素。
A. 属于
B. 不属于
C. 视作业高度判定
D. 视作业环境判定
19. 坠落高度基准面是指可能坠落范围内最低处的()。
A. 垂直面
B. 水平面
C. 斜面
D. 曲面
20. 作业场所光线不足,低于一般照明照度标准值的10%或低于15lx,()客观危险因素。
A. 属于
B. 不属于
C. 仅白天属于
D. 仅夜间属于
21. 存在客观危险因素,作业高度5m<hw≤15m的高处作业,分级为()。
A. Ⅱ级
B. Ⅲ级
C. Ⅳ级
D. Ⅰ级
22. 可能坠落范围是以作业位置为中心,以()为半径划成的与水平面垂直的柱形空间。
A. 基础高度
B. 高处作业高度
C. 可能坠落范围半径
D. 作业半径
23. 下列关于高处作业分级说法正确的是()。
A. 存在客观危险因素按A类法分级
B. 不存在客观危险因素按B类法分级
C. 无论是否存在危险因素,分级标准一致
D. 存在一种及以上客观危险因素按B类法分级
24. 作业活动范围与35kV危险电压带电体的安全距离小于()时,属于客观危险因素。
A. 1.7m
B. 2.0m
C. 2.5m
D. 3.0m
25. 当基础高度hb>30m时,可能坠落范围半径R为()。
A. 4m
B. 5m
C. 6m
D. 7m
26. 摆动作业或立足处是很小的平面(任一边小于500mm矩形平面),()客观危险因素。
A. 属于
B. 不属于
C. 视作业高度判定
D. 视作业人员判定
27. 高处作业高度确定的第一步是()。
A. 确定可能坠落范围半径R
B. 确定高处作业高度hw
C. 确定基础高度hb
D. 确定坠落高度基准面
28. 不存在客观危险因素,作业高度15m<hw≤30m的高处作业,分级为()。
A. Ⅱ级
B. Ⅲ级
C. Ⅳ级
D. Ⅰ级
29. 下列属于GB 3608-2025中客观危险因素的是()。
A. 作业人员未戴安全帽
B. 作业人员未系安全带
C. 作业环境存在有毒气体
D. 作业工具未检查
30. 关于高处作业高度计算,说法错误的是()。
A. 基础高度影响坠落范围半径
B. 高处作业高度是垂直距离最大值
C. 坠落高度基准面是可能坠落范围最低处水平面
D. 基础高度越小,坠落范围半径越大
二、判断题(共40题,每题1分,总计40分)
1. GB 3608-2025是强制性国家标准,代替了原推荐性标准GB/T 3608-2008。()
2. 距坠落高度基准面1.8m的作业,且存在坠落可能,属于高处作业。()
3. 高处作业高度分为2m~5m、5m以上至15m、15m以上至30m及30m以上四个区段。()
4. 不存在客观危险因素的高处作业,作业高度5m<hw≤15m,分级为Ⅱ级。()
5. 存在客观危险因素的高处作业,作业高度hw>30m,分级为Ⅳ级。()
6. 4级风力属于高处作业客观危险因素。()
7. Ⅰ级高温作业属于高处作业客观危险因素。()
8. 作业环境平均气温等于或低于0℃时,属于客观危险因素。()
9. 基础高度是以作业位置为中心,5m为半径的柱形空间内最低处与作业位置的高度差。()
10. 基础高度2≤hb≤5m时,可能坠落范围半径为3m。()
11. 高处作业高度是作业区各作业位置至坠落高度基准面垂直距离的最小值。()
12. 作业场地有易滑物,属于可能引起坠落的客观危险因素。()
13. 作业场所照明照度低于15lx,属于客观危险因素。()
14. 作业活动范围与10kV带电体安全距离1.6m,不属于客观危险因素。()
15. 空气中含氧量19%的作业环境,属于高处作业客观危险因素。()
16. 接触冷水温度10℃的作业,不属于高处作业客观危险因素。()
17. Ⅲ级体力劳动强度的作业,属于高处作业客观危险因素。()
18. 立足处是直径400mm的圆形平面,属于客观危险因素。()
19. 存在两种及以上客观危险因素的高处作业,按B类法分级。()
20. 不存在客观危险因素,作业高度hw>30m,分级为Ⅲ级。()
21. GB 3608-2025适用于各种类型的高处作业。()
22. 坠落高度基准面是可能坠落范围内最高处的水平面。()
23. 可能坠落范围半径的大小取决于基础高度。()
24. 存在客观危险因素,作业高度2m≤hw≤5m,分级为Ⅰ级。()
25. 基础高度5<hb≤15m时,可能坠落范围半径为4m。()
26. 作业环境光线充足,能见度良好,属于客观危险因素。()
27. 高处作业分级主要用于高处作业高度计算、分级及坠落风险评估。()
28. GB 3608-2025规定的客观危险因素共有10种。()
29. 摆动作业时,作业人员无法维持正常姿势,属于客观危险因素。()
30. 不存在客观危险因素,作业高度15m<hw≤30m,分级为Ⅲ级。()
31. 作业活动范围与35kV带电体安全距离2.0m,属于客观危险因素。()
32. 基础高度15<hb≤30m时,可能坠落范围半径为5m。()
33. 高处作业高度的确定需先计算可能坠落范围半径,再确定基础高度。()
34. 存在客观危险因素,作业高度5m<hw≤15m,分级为Ⅲ级。()
35. GB 3608-2025于2025年10月5日发布。()
36. 作业环境存在有毒气体,不属于高处作业客观危险因素。()
37. 可能坠落范围是与水平面垂直的柱形空间。()
38. 不存在客观危险因素,作业高度2m≤hw≤5m,分级为Ⅰ级。()
39. 基础高度hb>30m时,可能坠落范围半径为6m。()
40. Ⅱ级体力劳动强度的作业,属于高处作业客观危险因素。()
参考答案
一、单选题
1. B
2. B
3. B
4. A
5. C
6. D
7. D
8. A
9. B
10. A
11. B
12. C
13. C
14. B
15. A
16. C
17. C
18. A
19. B
20. A
21. B
22. C
23. D
24. B
25. C
26. A
27. C
28. B
29. C
30. D
二、判断题
1. √
2. ×
3. √
4. √
5. √
6. ×
7. ×
8. ×
9. ×
10. √
11. ×
12. √
13. √
14. ×
15. √
16. ×
17. √
18. √
19. √
20. ×
21. √
22. ×
23. √
24. ×
25. √
26. ×
27. √
28. √
29. √
30. √
31. ×
32. √
33. ×
34. √
35. √
36. ×
37. √
38. √
39. √
40. ×
(法规依据:根据国家市场监督管理总局(国家标准化管理委员会)发布的公告,GB 3608-2025《高处作业分级》已于2025年10月5日正式发布,并将于2026年5月1日起实施,全面替代原有的推荐性标准GB/T 3608-2008。此次修订最根本的变化是标准性质从“推荐性”升级为“强制性”国家标准,这意味着所有涉及高处作业的企业和个人必须严格执行,违规将承担相应的法律责任。)









